万象城手机在线官网,万象城(中国)
公司介绍
新闻中心
组织机构
服务理念
售后服务
联系我们
产品中心
jtgk.png

产品中心

Q41F日标球阀

您的位置:阀门 - 球阀 - Q41F日标球阀 更新时间:2025-10-29 09:10:04
Q41F日标球阀
    • 质量安全:压力、材质、密封等全方位检测确保质量过关!
    • 价格比较:在相同品质的情况下,厂里直销,更具有优势!
    • 交货快捷:常规产品现货供应,生产加工销售一条龙服务!
      上海凯利科阀门致力于高品质阀门的设计、研发、生产销售服务于一体的大型阀门企业,科技创新,永不止步,与您携手共创辉煌...

    • 产品描述
    • 在线询价
    • 技术咨询
    Q41F日标球阀Q41F日标球阀

    Q41F日标球阀主要用于截断或接通介质,也可用于流体的调节与控制。广泛用于石油、化工、冶金、电力、建筑、热力、给排水、水处理等行业。

    产品名称: 日标球阀 产品型号: Q41F
    公称通径: DN15~DN250 结构形式: 球形
    公称压力: 10K-20K 连接方式: 法兰
    适用温度: -20~+100℃~+550℃ 驱动方式: 手动、蜗轮、气动、电动
    阀体材质: 铸钢、不锈钢 制造标准: 国标GB、德国DIN、美国API、ANSI
    适用介质: 水、蒸汽、燃气、气体及腐蚀性液体等 生产厂家: 万象城手机在线官网,万象城(中国)

    产品说明

    Q41F日标球阀主要用于截断或接通介质,也可用于流体的调节与控制。广泛用于石油、化工、冶金、电力、建筑、热力、给排水、水处理等行业。

    产品标准 

    设计与制造按ANSI B16.34,JIS 2071
    结构长度按JIS B2002
    法兰连接尺寸按JIS B2212,2214
    检验按JIS B2003

    试验压力

    试验项目 壳体试验 密封试验 上密封试验 气密封试验
    介质
    单位 MPa MPa MPa MPa
    公称压力 10K 2.4 1.5 1.5 0.5-0.7
    20K 5.8 4.0 4.0

    主要零件材料

    名称 材料
    阀体
    阀盖
    A216WCB A352 LCB A217 WC6 A217 WC9 A217C5 A351 CF8 A351 CF8M A351 CF3 A351 CF3M
    球体 A182 F6 A182 F304
    阀杆 A182 F6 A182 F304 A182 F316 A182 F304L A182 F316L
    手柄 KTH350-10
    螺柱 A193-B7 A320-L7 A193-B8
    螺母 A194-2H A194-7 A194-8

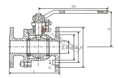
    外形结构图

    1

    日标10K主要连接尺寸

    型号 规格 (mm) 尺寸 (mm)
    inch DN L D D1 D2 b z-Φd H D0
    Q410F/Y-10K Q341F/Y-10K Q641F/Y-10K 1/2″ 15 108 95 70 52 12 4-Φ15 68 115
    3/4″ 20 117 100 75 58 14 4-Φ15 75 130
    1″ 25 127 125 90 70 14 4-Φ19 85 150
    11/4″ 32 140 135 100 80 16 4-Φ19 96 190
    11/2″ 40 165 140 105 85 16 4-Φ19 107 230
    2″ 50 178 155 120 100 16 4-Φ19 118 240
    21/2″ 65 190 175 140 120 18 4-Φ19 145 280
    3″ 80 203 185 150 130 18 8-Φ19 160 310
    4″ 100 229 210 175 155 18 8-Φ19 185 330
    5″ 125 356 250 210 185 20 8-Φ23 230 600
    6″ 150 394 280 240 215 22 8-Φ23 260 800
    8″ 200 457 330 290 265 22 12-Φ23 310 1000
    10″ 250 533 400 355 325 24 12-Φ25 350 1200

    日标20K主要连接尺寸

    型号 规格(mm) 尺寸 (mm)
    inch DN L D D1 D2 b z-Φd H D0
    Q41F/Y-20K Q341F/Y-20K Q641F/Y-20K 1/2″ 15 140 95 70 52 14 4-Φ15 72 115
    3/4″ 20 152 100 75 58 16 4-Φ15 75 130
    1″ 25 165 125 90 70 16 4-Φ19 85 150
    11/4″ 32 178 135 100 80 18 4-Φ19 95 190
    11/2″ 40 190 140 105 85 18 4-Φ19 110 230
    2″ 50 216 155 120 100 22 8-Φ19 120 240
    21/2″ 65 241 175 140 120 24 4-Φ19 150 280
    3″ 80 283 200 160 135 26 8-Φ23 165 310
    4″ 100 305 225 185 160 28 8-Φ23 190 330
    5″ 125 381 270 225 195 30 8-Φ25 240 600
    6″ 150 403 305 260 230 32 12-Φ25 270 800
    8″ 200 502 350 305 275 34 12-Φ25 315 1000
    10″ 250 568 430 380 345 34 12-Φ27 380 1200
     

    声明:【Q41F日标球阀】规格型号、结构尺寸由万象城手机在线官网,万象城(中国)提供,如何选择适用的Q41F日标球阀产品,使之在工艺控制中安全可靠、经济适用,可致电我司销售部门及技术部门,我们将在最短的时间内为您解答!

    

    Copyright ©2011-2023 万象城手机在线官网,万象城(中国),版权所有。 沪ICP备11046016号-29 网站地图

    销售电话:021-31001158

    手机号码:13816746668 陈国辉/经理

    电子邮件:klkvalves@126.com@126.com

    主营产品:球阀,闸阀,蝶阀,截止阀,止回阀,调节阀

    本周热门:不锈钢阻火器全天候呼吸阀气动球阀气动蝶阀气动刀闸阀气动调节阀电动球阀电动蝶阀电动刀闸阀电动调节阀不锈钢球阀不锈钢闸阀不锈钢截止阀不锈钢止回阀不锈钢电磁阀高压电磁阀高压球阀波纹管截止阀

    官方网址:www.ramsfootballclub.com